Multilocale in vendita

Firenze, Via de' Baldovini - Gavinana
€ 830.000
Prezzo aggiornato
7 locali 7 locali
160 Mq 160 Mq
4 bagni 4 bagni

Multilocale in vendita

Firenze, Via de' Baldovini - Gavinana

Descrizione annuncio

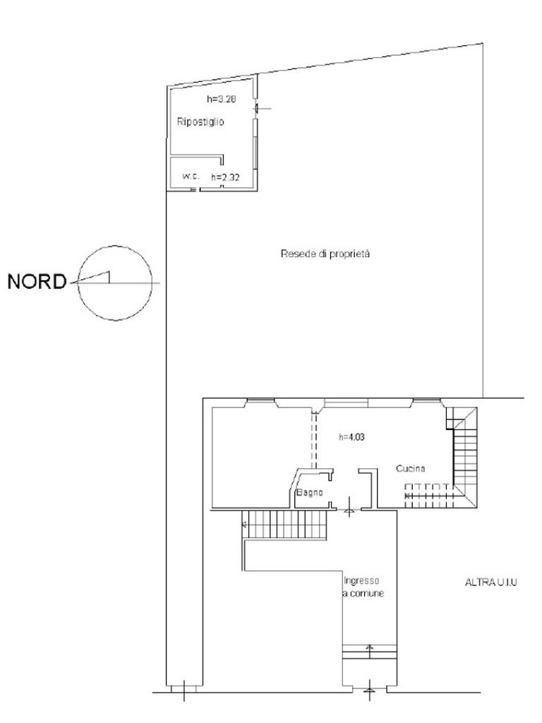
VIA DEI BALDOVINI - In palazzina bifamiliare, completamente ristrutturata nel 2009, si propone immobile di 160 mq circa calpestabili disposto su due livelli, con giardino di 200 mq, cantina di 30 mq e box auto di 22 mq.

Il piano terra è composto da ingresso con bagno di servizio, soggiorno dotato di termo-camino e cucina abitabile.

Da entrambi gli ambienti si accede al giardino privato di circa 200 mq, sul quale insiste un annesso, anche esso ristrutturato, dotato di servizio igienico ed aria condizionata, utilizzabile come possibile studio.

Il primo piano è invece composto da 5 camere da letto, 3 matrimoniali, 1 doppia ed 1 singola, due delle quali, quelle sul lato interno, servite da un balcone a tutta facciata; completano il piano 2 servizi igienici finestrati con doccia, ed un servizio con aereazione forzata dotato di doccia e vasca idromassagio.

Di proprietà un'ampia cantina di circa 30 mq accessibile sia direttamente dal vano scale che dal giardino di proprietà.

Completa l'immobile un box auto di 22 mq soppalcato, con apertura bandone di 2,60 mt, anche esso con accesso diretto dal vano scale.

L'impianto di riscaldamento risulta essere termo-singolo con pannelli radianti a pavimento al pianto terra, e classici termosifoni in ghisa al primo piano.

E' installato impianto di aria condizionata in ogni singolo ambiente.

L'intero immobile è frutto di un'attenta ristrutturazione avvenuta nel 2009, pertanto risulta essere provvisto di certificazione sia dell'impianto elettrico che termo-idraulico.

Possibilità di accesso diretto dalla strada al giardino attraverso cancellino in ferro.

Per fissare un appuntamento contatta lo 055683939 oppure tramite mail ficd3

Ogni agenzia ha un proprio titolare ed e' autonoma - Le presenti informazioni non costituiscono elemento contrattuale.

Mostra tutto

Nelle vicinanze

Trasporto pubblico Trasporto pubblico
stazione di Firenze Campo di Marte
stazione di Firenze Campo di Marte
1,7 Km
stazione di Firenze Santa Maria Novella
stazione di Firenze Santa Maria Novella
2,8 Km
Unità
Unità
2,5 Km
Valfonda - Stazione Santa Maria Novella
Valfonda - Stazione Santa Maria Novella
2,6 Km
Baldovini
Baldovini
30 m
Ricariche auto elettriche Ricariche auto elettriche
Garage Grand Hotel Mediterraneo | EnelX
480 m
Eneldrive Lungarno Ferrucci
480 m
Eneldrive (ex SILFI) Ravenna
540 m
Eneldrive (ex SILFI) Ghirlandaio
630 m
Garage Florence Parking | EnelX
780 m
Scuole Scuole
Istituto Sacro Cuore
290 m
Istituti Paritari Cavour Pacinotti
380 m
Scuola Don Bosco
680 m
Scuola Secondaria di Primo Grado Giacomo Puccini
830 m
Elementari Villani
850 m
Farmacia Farmacia
Farmacia Bargioni
130 m
Antica Farmacia Morelli
220 m
Farmacia
710 m
Farmacia Ninci
880 m
Farmacia comunale di Bellariva
1,0 Km
Ospedali Ospedali
Ospedale Piero Palagi
870 m
CUR 112 TOSCANA
970 m
Ospedale di Santa Maria Nuova
1,7 Km
Villa Donatello
1,9 Km
Principe di Piemonte
2,9 Km
Supermercati Supermercati
Coop
930 m
Conad City
950 m
Coop.fi
1,0 Km
Il Villaggio dei Popoli
1,5 Km
Sapori di Korea
1,7 Km
Negozi Negozi
Mulas
90 m
LOL
90 m
Vaia Concept Store
100 m
Pugi
110 m
Negozi
120 m
Bar Bar
Bar Bargioni
120 m
Barvino
250 m
Bar Migliorini
250 m
L'Officina Ferrucci
260 m
Bar
280 m
Ristoranti Ristoranti
Affè di Bacco
70 m
Ristorante La Piperna
110 m
Fulin
140 m
Trattoria Gigi
170 m
Crepapelle
180 m
Mostra tutto

Caratteristiche

Rif.:
61173641
Piano:
Su più livelli di 2
Totale piani:
2
Box:
1
Balconi:
1
Camere da letto:
5
Mostra tutto
Prezzo Prezzo
€ 830.000
Rata mutuo Rata mutuo
€ 3.933 / mese
Spese annue Spese annue
€ 200
Proponi il tuo prezzoProponi il tuo prezzo
Immobile valutato con T·Valuta

Classe Energetica

F
F
F
F
F
F
F
F
F
EP globale non rinnovabile:
175.00 kW h/m² anno
EP globale rinnovabile:
1.00 kW h/m² anno
EP invernale del fabbricato:
EP estiva del fabbricato:
Anno di costruzione:
1900
Riscaldamento:
Autonomo
Tipo impianto:
A pavimento
Tipo alimentazione:
Metano

Prezzo ridotto di €1 (7%%)

Ti interessa visionare l'immobile?

Fissa un appuntamento  Fissa un appuntamento

Richiedi informazioni

Clicca su Leggi per aprire l'informativa
* Questi campi sono obbligatori

Calcola il tuo mutuo

Semplice e senza impegno
Anticipo

( % )
Mutuo

( % )

pochi semplici passi

inserisci i tuoi dati
Questionario completato
Grazie per aver richiesto un appuntamento senza impegno con un nostro Consulente del Credito e Assicurativo.

Hai inserito correttamente tutti i dati necessari e a breve riceverai una e-mail con un link da convalidare per inviare i tuoi dati.
Affiliato
Studio Gavinana Sas
Via Giampaolo Orsini, 19/r 50126 Firenze (FI)

Il nostro staff


  • Tommaso Birignani
    Affiliato

  • Gianmarco Abrigo
    Collaboratore

  • Giulia Ligorio
    Coordinatrice

  • Asia Ermini
    Collaboratrice

  • Vieri Sartorio
    Affiliato
Via Giampaolo Orsini, 19/r 50126 Firenze (FI)
Zona: Gavinana
Mostra su mappa
Orari: lunedì-venerdì 09.00-13.00 / 15.30-20.00 sabato 09.00-13.00 / 15.30 18.00
Affiliato
Studio Gavinana Sas
Via Giampaolo Orsini, 19/r 50126 Firenze (FI)

2026 Tecnocasa Franchising S.p.A. - P. IVA 08365160152 - Via Monte Bianco 60/A 20089 Rozzano (MI). Ogni agenzia ha un proprio titolare ed è autonoma. Privacy policy | Policy utilizzo | Cookie policy