6 locali in vendita

Firenze, Via Francesco Datini - Gavinana
€ 390.000
6 locali 6 locali
115 Mq 115 Mq
1 bagno 1 bagno

6 locali in vendita

Firenze, Via Francesco Datini - Gavinana

Descrizione annuncio

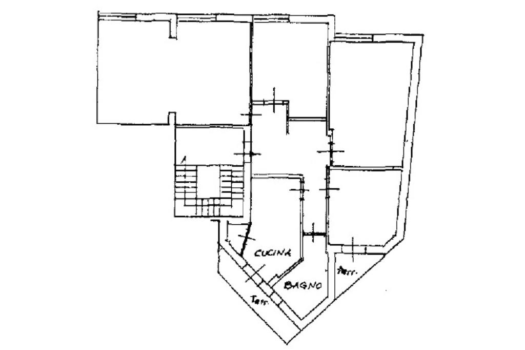
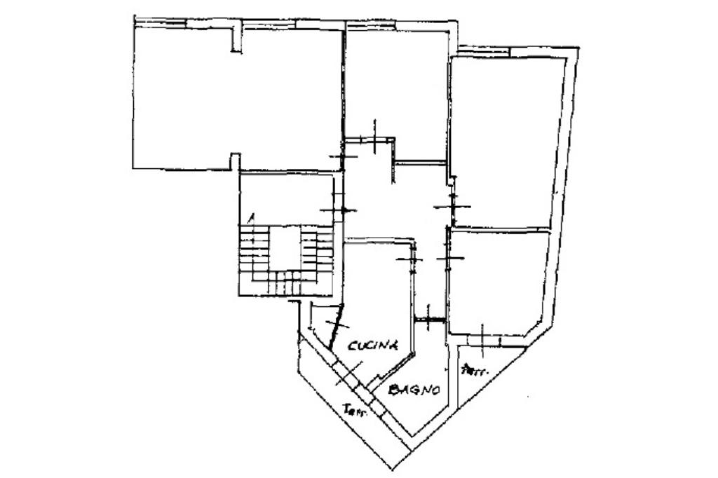
VIA FRANCESCO DATINI - Situato in palazzina di fine anni '50, con opere condominiali in buono stato, posto al terzo piano con ascensore, si propone 6 vani di 115 mq circa con sala doppia, 3 camere da letto e 2 balconi.

Accedendo all'immobile tramite portoncino blindato si entra nell'ampio ingresso disimpegno sul quale confluiscono tutti gli ambienti: la cucina abitabile con ripostiglio e balcone interno, la sala da 40 mq con doppio punto luce, una camera da letto doppia con accesso ad un secondo balcone, e 2 camera da letto matrimoniali, di cui una di 23 mq.

Completa la proprietà un servizio igienico finestrato con doccia.

L'impianto di riscaldamento è centralizzato ed è presente l'aria condizionata in due camera da letto.

Le spese condominiali ammontano circa a 1300 euro l'anno, escluso riscaldamento.

L'immobile si presenta in condizioni da rimodernare.

Per fissare un appuntamento contatta lo 055683939 oppure tramite mail ficd3

Ogni agenzia ha un proprio titolare ed e' autonoma - Le presenti informazioni non costituiscono elemento contrattuale.

Mostra tutto

Nelle vicinanze

Trasporto pubblico Trasporto pubblico
stazione di Firenze Campo di Marte
stazione di Firenze Campo di Marte
1,9 Km
stazione di Firenze Rovezzano
stazione di Firenze Rovezzano
2,0 Km
Datini Gualfredotto
Datini Gualfredotto
20 m
Gualfredotto
Gualfredotto
40 m
Ricariche auto elettriche Ricariche auto elettriche
Eneldrive (ex SILFI) Gualfredotto
70 m
Eneldrive Giannotti
290 m
Eneldrive (ex SILFI) Ravenna
420 m
Eneldrive Lungarno Ferrucci
500 m
COOP Centro Commerciale Gavinana | EnelX
550 m
Scuole Scuole
Elementari Villani
150 m
Liceo Scientifico Sportivo "Dante Alighieri"
430 m
Istituto Tecnico Aeronautico "Lindbergh"
480 m
Scuole
500 m
Scuola Secondaria di I Grado "Botticelli"
610 m
Farmacia Farmacia
Farmacia
220 m
Farmacia comunale di Bellariva
660 m
Antica Farmacia Morelli
700 m
Farmacia Bargioni
1,0 Km
Farmacia Territoriale
1,1 Km
Ospedali Ospedali
Ospedale Piero Palagi
1,4 Km
CUR 112 TOSCANA
1,4 Km
Villa Donatello
2,4 Km
Ospedale di Santa Maria Nuova
2,5 Km
Supermercati Supermercati
Coop
530 m
Conad City
770 m
Coop.fi
820 m
Esselunga del Gignoro
1,3 Km
Lidl
1,5 Km
Negozi Negozi
Le Pizzicagnole
100 m
Cosi
290 m
Mirella
800 m
Pugi
810 m
Negozi
830 m
Bar Bar
Al Bar
360 m
Bar
530 m
Cotton bar
650 m
Barvino
660 m
Bar Migliorini
670 m
Ristoranti Ristoranti
El Inca
100 m
Ristorante del Pronto Pizza
180 m
Osteria Del Nacchero
310 m
Bioveggy
360 m
Ristoranti
450 m
Mostra tutto

Caratteristiche

Rif.:
61150851
Piano:
3 di 5 con ascensore (Piano alto)
Balconi:
2
Camere da letto:
3
Arredamento:
Assente
Condizionamento:
Autonomo
Mostra tutto
Prezzo Prezzo
€ 390.000
Rata mutuo Rata mutuo
€ 1.841 / mese
Spese annue Spese annue
€ 2.100
Proponi il tuo prezzoProponi il tuo prezzo
Immobile valutato con T·Valuta

Classe Energetica

G
G
G
G
G
G
G
G
G
EP globale non rinnovabile:
184.63 kW h/m² anno
EP globale rinnovabile:
13.23 kW h/m² anno
EP invernale del fabbricato:
EP estiva del fabbricato:
Anno di costruzione:
1957
Riscaldamento:
Centralizzato
Tipo impianto:
A radiatori
Tipo alimentazione:
Metano

Ti interessa visionare l'immobile?

Fissa un appuntamento  Fissa un appuntamento

Richiedi informazioni

Clicca su Leggi per aprire l'informativa
* Questi campi sono obbligatori

Calcola il tuo mutuo

Semplice e senza impegno
Anticipo

( % )
Mutuo

( % )

pochi semplici passi

inserisci i tuoi dati
Questionario completato
Grazie per aver richiesto un appuntamento senza impegno con un nostro Consulente del Credito e Assicurativo.

Hai inserito correttamente tutti i dati necessari e a breve riceverai una e-mail con un link da convalidare per inviare i tuoi dati.
Affiliato
Studio Gavinana Sas
Via Giampaolo Orsini, 19/r 50126 Firenze (FI)

Il nostro staff


  • Tommaso Birignani
    Affiliato

  • Gianmarco Abrigo
    Collaboratore

  • Giulia Ligorio
    Coordinatrice

  • Asia Ermini
    Collaboratrice

  • Vieri Sartorio
    Affiliato
Via Giampaolo Orsini, 19/r 50126 Firenze (FI)
Zona: Gavinana
Mostra su mappa
Orari: lunedì-venerdì 09.00-13.00 / 15.30-20.00 sabato 09.00-13.00 / 15.30 18.00
Affiliato
Studio Gavinana Sas
Via Giampaolo Orsini, 19/r 50126 Firenze (FI)

2025 Tecnocasa Franchising S.p.A. - P. IVA 08365160152 - Via Monte Bianco 60/A 20089 Rozzano (MI). Ogni agenzia ha un proprio titolare ed è autonoma. Privacy policy | Policy utilizzo | Cookie policy