Multilocale in affitto

Firenze, Via di Ripoli - Gavinana
€ 1.800 / mese
Prezzo aggiornato
7 locali 7 locali
175 Mq 175 Mq
3 bagni 3 bagni

Multilocale in affitto

Firenze, Via di Ripoli - Gavinana

Descrizione annuncio

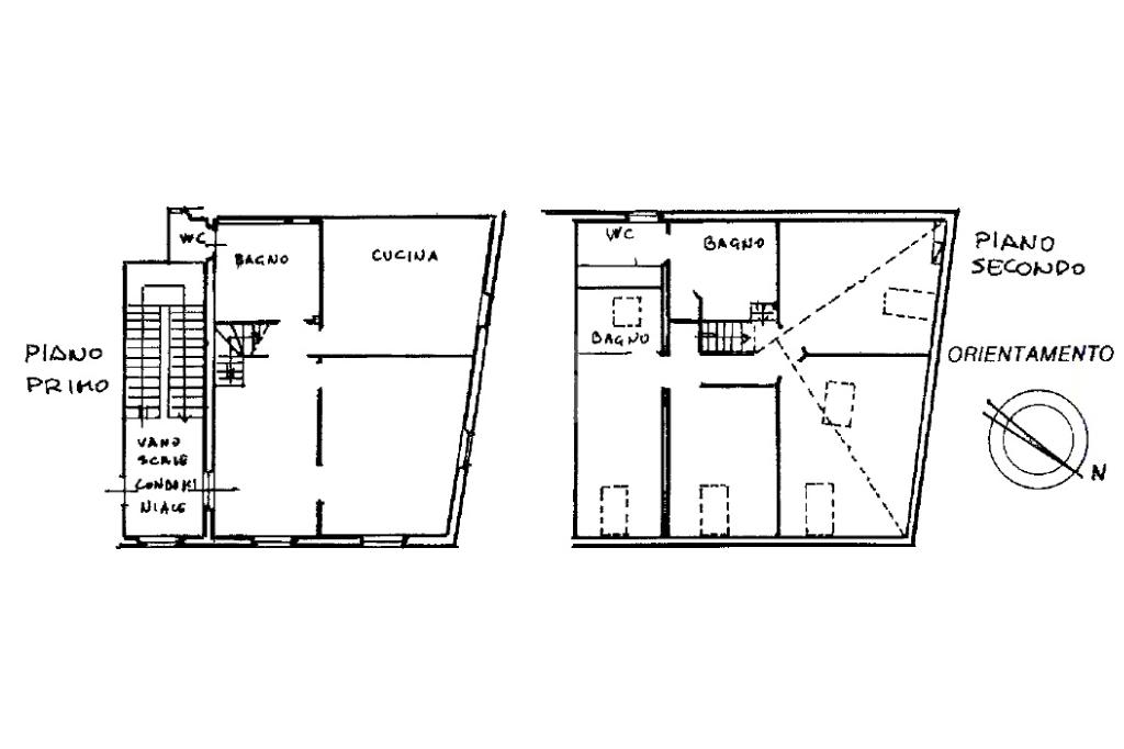
VIA DI RIPOLI - Proponiamo in locazione con contratto di natura concordata transitorio, appartamento di 175 mq circa, con 3 camere da letto e 3 bagni.

L'immobile si sviluppa su due livelli ed occupa il primo ed ultimo piano dello stabile: ad accoglierci nell'appartamento troviamo un ampio ingresso sul quale insistono le scale per accedere al piano superiore ed il soggiorno con doppia esposizione; proseguendo troviamo un disimpegno che da accesso alla cucina abitabile oltrechè al vano lavanderia ed al bagno.

Al piano superiore troviamo la zona notte composta da tre camere da letto matrimoniali ed il servizio igienico padronale, che dispone di vasca idromasaggio, doccia e doppio lavabo.

La camera da letto principale è dotata di un secondo vano, utilizzabile come studio o cabina armadio, e di un bagno en - suite con doccia.

Si affitta completamente arredato, compreso di lavastoviglie, lavatrice ed asciugatrice.

Le spese condominiali ammontano a 100 euro al mese.

L'appartamento si presenta in perfetto stato con rifiniture di pregio, cotto fiorentino ed impianto di aria condizionata inverter 'Daikin' in tutti gli ambienti.

Internamente ed esternamente l'immobile è stato ristrutturato nel 2024, con integrale sostituzione e motorizzazione delle finestre a tetto.

Per fissare un appuntamento contatta lo 055683939 oppure tramite mail ficd3

Ogni agenzia ha un proprio titolare ed e' autonoma - Le presenti informazioni non costituiscono elemento contrattuale.

Mostra tutto

Nelle vicinanze

Trasporto pubblico Trasporto pubblico
stazione di Firenze Campo di Marte
stazione di Firenze Campo di Marte
2,2 Km
stazione di Firenze Rovezzano
stazione di Firenze Rovezzano
2,4 Km
Dalla Costa
Dalla Costa
50 m
Giannotti Bocchi
Giannotti Bocchi
190 m
Ricariche auto elettriche Ricariche auto elettriche
Eneldrive Giannotti
220 m
Eneldrive (ex SILFI) Gualfredotto
430 m
COOP Centro Commerciale Gavinana | EnelX
500 m
Eneldrive (ex SILFI) Ravenna
540 m
Eneldrive Lungarno Ferrucci
590 m
Scuole Scuole
Liceo Scientifico Sportivo "Dante Alighieri"
160 m
Istituto Tecnico Aeronautico "Lindbergh"
190 m
Scuole
220 m
Elementari Villani
250 m
Scuola Secondaria di Primo Grado Giacomo Puccini
370 m
Farmacia Farmacia
Farmacia
230 m
Antica Farmacia Morelli
650 m
Farmacia Bargioni
890 m
Farmacia comunale di Bellariva
990 m
Farmacia Territoriale
1,4 Km
Ospedali Ospedali
Ospedale Piero Palagi
990 m
CUR 112 TOSCANA
1,1 Km
Ospedale di Santa Maria Nuova
2,5 Km
Villa Donatello
2,5 Km
Supermercati Supermercati
Coop
520 m
Conad City
1,0 Km
Coop.fi
1,1 Km
Esselunga del Gignoro
1,7 Km
Lidl
1,9 Km
Negozi Negozi
Cosi
360 m
Le Pizzicagnole
440 m
Mirella
720 m
Pugi
730 m
Negozi
750 m
Bar Bar
Bar
470 m
Cotton bar
520 m
Barvino
620 m
Al Bar
620 m
Bar Migliorini
640 m
Ristoranti Ristoranti
Osteria Del Nacchero
420 m
El Inca
450 m
Ristorante del Pronto Pizza
510 m
Ristoranti
520 m
Convivium
550 m
Mostra tutto

Caratteristiche

Rif.:
61191284
Piano:
1 di 2 (Piano medio)
Camere da letto:
3
Arredamento:
Completo
Condizionamento:
Autonomo
Ascensore:
No
Mostra tutto
Prezzo Prezzo
€ 1.800 / mese
Spese annue Spese annue
€ 1.200

Classe Energetica

D
D
D
D
D
D
D
D
D
EP globale non rinnovabile:
108.72 kW h/m² anno
EP globale rinnovabile:
3.20 kW h/m² anno
EP invernale del fabbricato:
EP estiva del fabbricato:
Anno di costruzione:
1900
Riscaldamento:
Autonomo
Tipo impianto:
A radiatori
Tipo alimentazione:
Metano

Prezzo ridotto di €1 (10%%)

Ti interessa visionare l'immobile?

Fissa un appuntamento  Fissa un appuntamento

Richiedi informazioni

Clicca su Leggi per aprire l'informativa
* Questi campi sono obbligatori
Affiliato
Studio Gavinana Sas
Via Giampaolo Orsini, 19/r 50126 Firenze (FI)

Il nostro staff


  • Tommaso Birignani
    Affiliato

  • Gianmarco Abrigo
    Collaboratore

  • Giulia Ligorio
    Coordinatrice

  • Asia Ermini
    Collaboratrice

  • Vieri Sartorio
    Affiliato
Via Giampaolo Orsini, 19/r 50126 Firenze (FI)
Zona: Gavinana
Mostra su mappa
Orari: lunedì-venerdì 09.00-13.00 / 15.30-20.00 sabato 09.00-13.00 / 15.30 18.00
Affiliato
Studio Gavinana Sas
Via Giampaolo Orsini, 19/r 50126 Firenze (FI)

2026 Tecnocasa Franchising S.p.A. - P. IVA 08365160152 - Via Monte Bianco 60/A 20089 Rozzano (MI). Ogni agenzia ha un proprio titolare ed è autonoma. Privacy policy | Policy utilizzo | Cookie policy